
Poznaj dom prefabrykowany
Areca 100
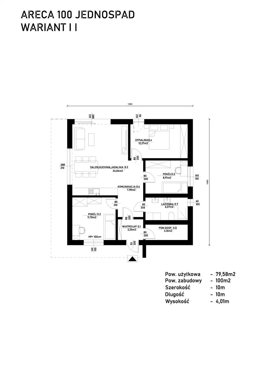
Areca 100 to funkcjonalny, energooszczędny dom o powierzchni 100 m² zabudowy, zaprojektowany z myślą o mniejszych rodzinach, które oczekują wygody, przestrzeni i przemyślanego układu pomieszczeń.
W zależności od wybranej konfiguracji, komfortowo może w nim zamieszkać od 2 do 4 osób. Projekt łączy kompaktową formę z optymalnym wykorzystaniem metrażu, oferując wygodną strefę dzienną oraz prywatną przestrzeń dla domowników. Areca 100 umożliwia integrację nowoczesnych rozwiązań energooszczędnych, takich jak pompa ciepła, instalacja fotowoltaiczna, magazyn energii czy system rekuperacji, co pozwala obniżyć koszty eksploatacji i zapewnić wysoki komfort użytkowania przez cały rok. Dom możesz uzupełnić o taras, garaż, pergolę lub wiatę, tworząc spójną i funkcjonalną przestrzeń dopasowaną do Twojego stylu życia.
Termoizolacyjność – współczynniki przenikania ciepła:
U ściany zewnętrznej = 0,14 W/(m2·K)
U dachu = 0,13 W/(m2·K)
U okien ściennych = 0,73 W/(m2·K)
U okien dachowych = 1,1 W/(m2·K)
Warianty wyposażenia
- Dom – ocieplenie
- Elewacja z poszyciem dachowym
- Instalacja wod-kan i elektryczna
- Rekuperacja
- Dom – ocieplenie
- Elewacja z poszyciem dachowym
- Instalacja wod-kan i elektryczna
- Rekuperacja
- Fundament – płyta fundamentowa
- Ogrzewanie podłogowe
- Wylewki
- Pompa ciepła
- Dom – ocieplenie
- Elewacja z poszyciem dachowym
- Instalacja wod-kan i elektryczna
- Rekuperacja
- Fundament – płyta fundamentowa
- Ogrzewanie podłogowe
- Wylewki
- Pompa ciepła
- Fotowoltaika
- Magazyn energii
- AREMS
Wzory elewacji
Warianty
układu wnętrz
Materiały do pobrania
Wypełnij poniższy formularz by otrzymać materiały o produkcie i naszej technologii na e-mail.

