
Poznaj dom prefabrykowany
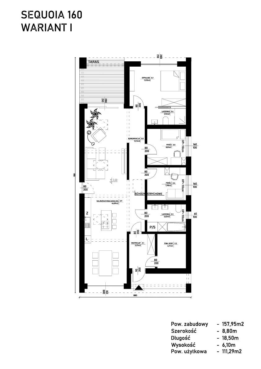
Sequoia 160
Sequoia 160 to największy dom w naszej ofercie – projekt stworzony dla rodzin, które oczekują przestronnych wnętrz i pełnej swobody aranżacyjnej.
Harmonijny układ pomieszczeń zapewnia wygodne funkcjonowanie całej rodziny, a elastyczność projektu pozwala dopasować wnętrze do indywidualnych potrzeb i stylu życia.
Sequoia 160 to jednak coś więcej niż metraż. Projekt umożliwia integrację nowoczesnych rozwiązań energooszczędnych, takich jak pompa ciepła, instalacja fotowoltaiczna, magazyn energii czy system rekuperacji, co przekłada się na niższe koszty eksploatacji i wysoki komfort użytkowania przez cały rok. Całość możesz uzupełnić o taras, garaż, pergolę, wiatę lub inne produkty dodatkowe, tworząc spójną, reprezentacyjną i w pełni funkcjonalną przestrzeń wokół domu.
Termoizolacyjność – współczynniki przenikania ciepła:
U ściany zewnętrznej = 0,14 W/(m2·K)
U dachu = 0,13 W/(m2·K)
U okien ściennych = 0,73 W/(m2·K)
U okien dachowych = 1,1 W/(m2·K)
Warianty wyposażenia
- Dom – ocieplenie
- Elewacja z poszyciem dachowym
- Instalacja wod-kan i elektryczna
- Rekuperacja
- Dom – ocieplenie
- Elewacja z poszyciem dachowym
- Instalacja wod-kan i elektryczna
- Rekuperacja
- Fundament – płyta fundamentowa
- Ogrzewanie podłogowe
- Wylewki
- Pompa ciepła
- Dom – ocieplenie
- Elewacja z poszyciem dachowym
- Instalacja wod-kan i elektryczna
- Rekuperacja
- Fundament – płyta fundamentowa
- Ogrzewanie podłogowe
- Wylewki
- Pompa ciepła
- Fotowoltaika
- Magazyn energii
- AREMS
Wzory elewacji
Warianty
układu wnętrz
Materiały do pobrania
Wypełnij poniższy formularz by otrzymać materiały o produkcie i naszej technologii na e-mail.


